Hagenberg, Hauptstraße 81d/5
Objekt-Beschreibung
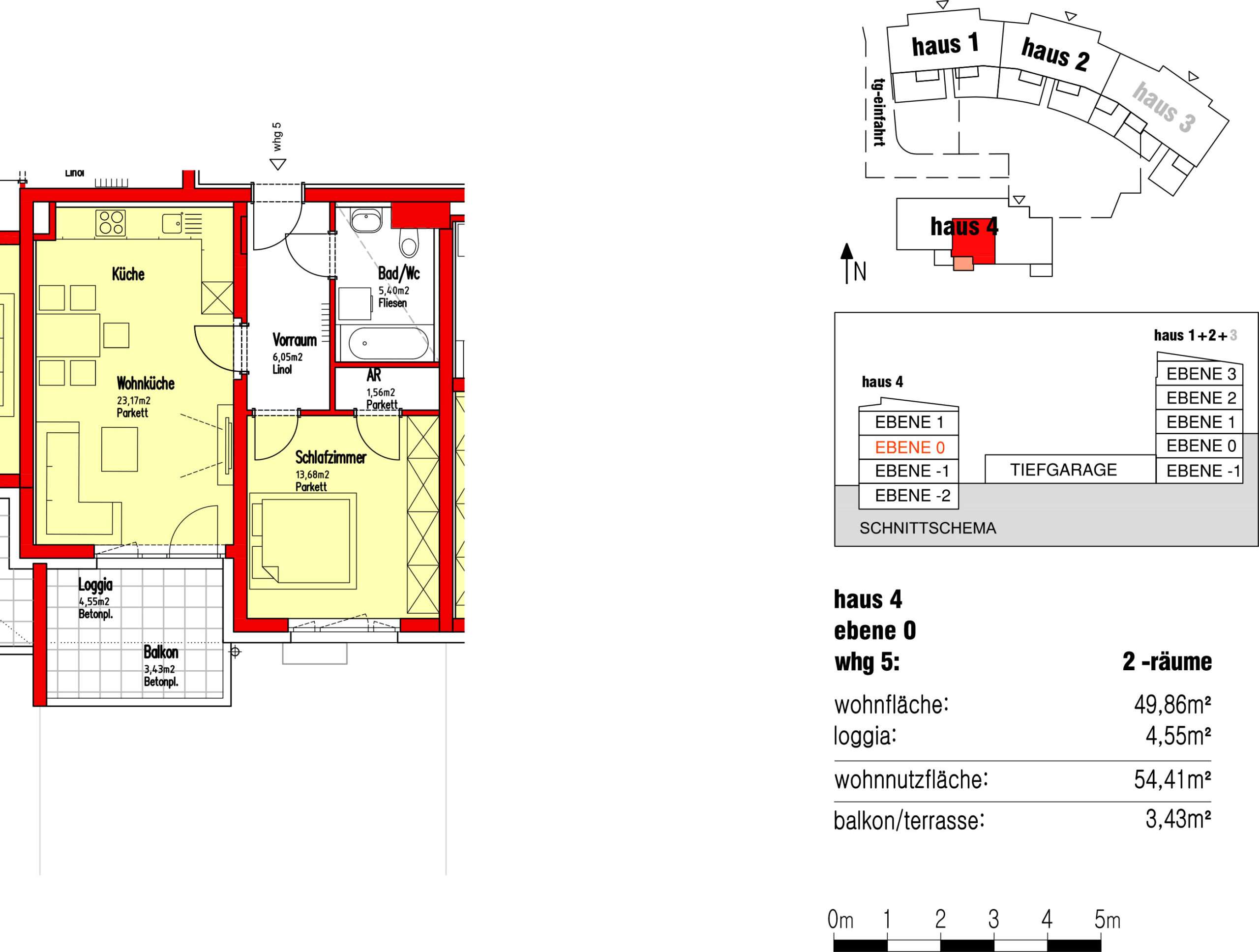
Wohnung in Hagenberg, Hauptstraße 81d/5, ab April zu vermieten:
im 1. Obergeschoss mit 54,41 m², zwei Zimmer, Bad/WC, VR, AR, Parkett, Loggia, HWB = 17,5 kWh/m²a, TG-Parkplatz, Lift
Miete: € 667,56
inkl. TG-Parkplatz, Betriebskosten und USt.
exkl. Heizung und Warmwasser
Kaution/Baukostenbeitrag: € 2.002,68
zentrale Lage in Hagenberg, das Gemeindezentrum und ein Lebensmittelgeschäft ist zu Fuß erreichbar
ruhige Lage mit Blick ins Grüne
Die Küche, Esstisch und Bänke, Wohnwand, Couch, Schlafzimmer Kasten, Bett, Garderobe und die Möbel im Bad können nach Absprache mit dem derzeitigen Mieter abgelöst werden.
Die Übernahme der einzelnen Möbeln ist jedoch nicht verpflichtend.
Ansprechpersonen:
| Wohnungsinformation: Birgit Moser |
Objekt-Details
| Kaltmiete | € 667,56 |
| Kaution / Baukostenbeitrag | € 2.002,68 |
| Anzahl Zimmer | 2 |
| Anzahl Schlafzimmer | 1 |
| Anzahl Badezimmer | 1 |
| Anzahl Kellerräume | 1 |
| Wohnfläche | 54,41 m2 |
| Verfügbar ab | April |
| Heizungsart | Zentralheizung |
| HWB | 17,5 kWh/m2a |
| fGEE | 0,55 |
| Etage | 1. Obergeschoss |
| Loggia | |
| Garage | |
| Aufzug | |
| Barrierefrei |
Objekt-Lage
4232 Hagenberg, Hauptstraße 81d/5
Mit dem Laden des Inhalts akzeptieren Sie die Datenschutzerklärung von Google Maps.
Objekt-Anfrage
Ich bitte um Kontaktaufnahme zu diesem Objekt:
Hagenberg, Hauptstraße 81d/5
| Standort: | Hagenberg im Mühlkreis |
| Typ: | Mietwohnung |
| Wohnfläche | 54,41 m2 |
| Anzahl Zimmer | 2 |
