Alkoven, Oberfeldweg 6/14
Objekt-Beschreibung
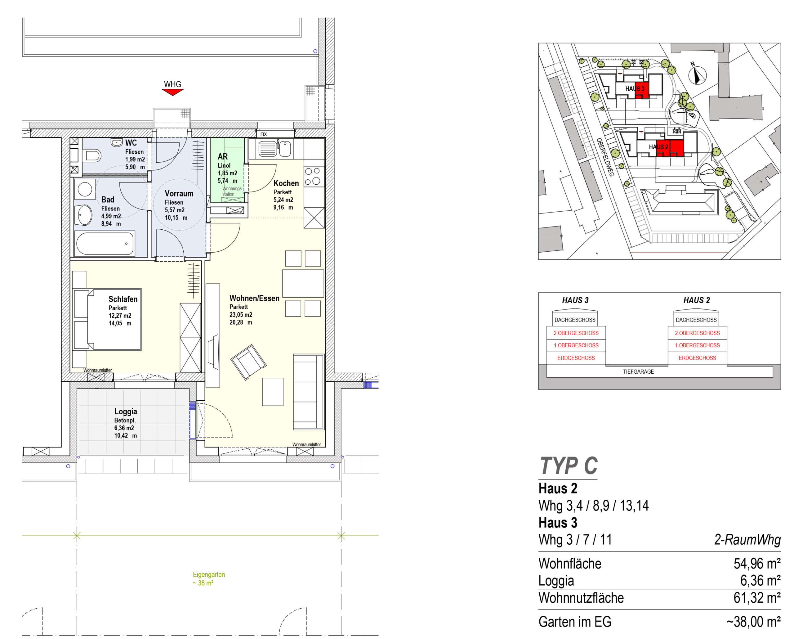
Alkoven | Mietwohnung | € 709,37 | 61,32 m² |
2 Zimmer
Wohnung in Alkoven, Oberfeldweg 6/14, ab Mai zu vermieten:
im 2. Obergeschoss mit 61,32 m², zwei Zimmer, Bad/WC getrennt, Loggia, VR, AR, Parkett, HWB = 41 kWh/m²a, TG-Parkplatz, Lift
Miete: € 709,37
inkl. TG-Parkplatz, Betriebskosten und USt.
exkl. Heizung und Warmwasser
Kaution/Baukostenbeitrag: € 2.174,90
sehr ruhige Lage, in der Nähe vom Institut bzw. Schloss Hartheim
Ansprechpersonen:
| Wohnungsinformation: Birgit Moser |
Objekt-Details
| Kaltmiete | € 709,37 |
| Kaution / Baukostenbeitrag | € 2.174,90 |
| Anzahl Zimmer | 2 |
| Anzahl Schlafzimmer | 1 |
| Anzahl Badezimmer | 1 |
| Anzahl Kellerräume | 1 |
| Wohnfläche | 61,32 m2 |
| Verfügbar ab | Mai |
| Heizungsart | Fernwärme |
| HWB | 41 kWh/m2a |
| fGEE | 0,68 |
| Etage | 2. Obergeschoss |
| Loggia | |
| Garage | |
| Aufzug | |
| Barrierefrei |
Objekt-Lage
4072 Alkoven, Oberfeldweg 6/14
Mit dem Laden des Inhalts akzeptieren Sie die Datenschutzerklärung von Google Maps.
Objekt-Anfrage
Ich bitte um Kontaktaufnahme zu diesem Objekt:
Alkoven, Oberfeldweg 6/14
| Standort: | Alkoven |
| Typ: | Mietwohnung |
| Wohnfläche | 61,32 m2 |
| Anzahl Zimmer | 2 |
