Eferding, Molkereistraße 27/7
Objekt-Beschreibung
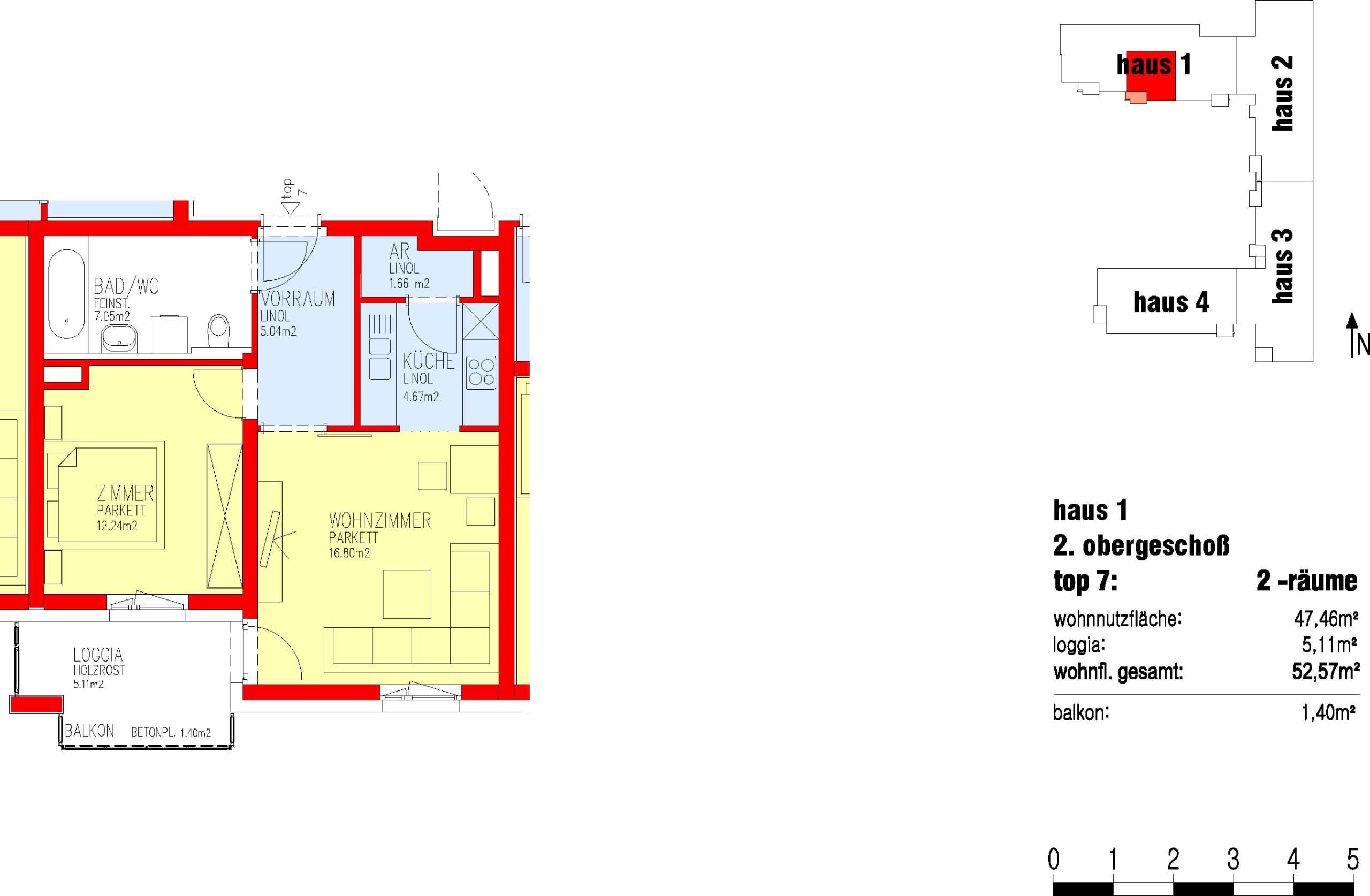
Eferding | Mietwohnung | € 611,63 | 52,57 m² |
2 Zimmer
Wohnung in Eferding, Molkereistraße 27/7, ab sofort zu vermieten:
im 2. Obergeschoss mit 52,57 m², zwei Zimmer, Bad/WC, VR, AR, Loggia, Parkett, HWB = 36 kWh/m²a, TG-Parkplatz, Lift
Miete: € 611,63
inkl. TG-Parkplatz, Betriebskosten und USt.
exkl. Heizung und Warmwasser
Kaution/Baukostenbeitrag: € 2.000
gute Infrastruktur vorhanden, Lebensmittelgeschäft und diverse andere Geschäfte fußläufig erreichbar
Ansprechpersonen:
| Wohnungsinformation: Birgit Moser |
Objekt-Details
| Kaltmiete | € 611,63 |
| Kaution / Baukostenbeitrag | € 2.000 |
| Anzahl Zimmer | 2 |
| Anzahl Schlafzimmer | 1 |
| Anzahl Badezimmer | 1 |
| Anzahl Kellerräume | 1 |
| Wohnfläche | 52,57 m2 |
| Verfügbar ab | sofort |
| Heizungsart | Zentralheizung |
| HWB | 36 kWh/m2a |
| fGEE | 0,64 |
| Etage | 2. Obergeschoss |
| Loggia | |
| Garage | |
| Aufzug | |
| Barrierefrei |
Objekt-Lage
4070 Eferding, Molkereistraße 27/7
Mit dem Laden des Inhalts akzeptieren Sie die Datenschutzerklärung von Google Maps.
Objekt-Anfrage
Ich bitte um Kontaktaufnahme zu diesem Objekt:
Eferding, Molkereistraße 27/7
| Standort: | Eferding |
| Typ: | Mietwohnung |
| Wohnfläche | 52,57 m2 |
| Anzahl Zimmer | 2 |
